智能停車安裝需要注意以下幾點:
選擇合適的安裝場地:安裝智能停車設備需要有足夠的空間,且地面承重能力要滿足設備的要求。同時,還應考慮周邊交通流量、進出口道路的設計和安全要求。
	
施工前進行專業評估:在安裝之前,應該進行專業的評估,包括場地的土地測量、地質勘測和承重能力評估,以確保設備能夠安全、穩定地安裝。
遵循廠家的安裝要求:每個智能停車設備的安裝要求可能會有所不同,因此要仔細閱讀和遵循廠家提供的安裝手冊和指南,確保正確安裝設備。
確保設備供電和通風:智能停車設備需要穩定的供電和良好的通風系統,以確保設備的正常運行。應該預留相應的電源接口和通風設施,并確保設備與電源系統的連接安全可靠。
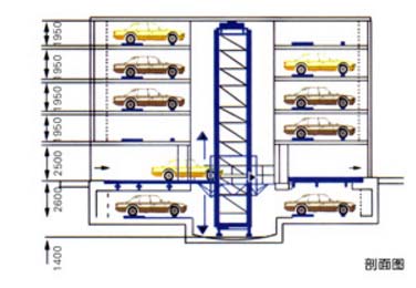
合理安排設備布局:根據實際情況,合理安排設備的布局,包括停車位的數量、通道的寬度和高度、設備的擺放位置等。同時,還要考慮設備的維護方便性和緊急救援的通道設置。
安裝人員培訓和資質:安裝人員應具備相關的技術知識和經驗,并嚴格按照安裝要求進行操作。在安裝完成后,應對相關人員進行培訓,以確保他們能夠正確操作和維護設備。
嚴格遵守安全標準:在安裝過程中,要嚴格遵守相關的安全標準和規定,確保設備的安全性。同時,還要定期進行設備的維護和檢查,及時排除潛在的安全隱患。
以上是智能停車安裝需要注意的事項,希望能對您有所幫助。
掃描進入手機站