立體停車的類型介紹
立體停車是一種利用空間節約土地的停車方式,通過將車輛停放在多層立體停車位上,實現停車位的較大化利用。立體停車主要分為以下幾種類型:
	
 
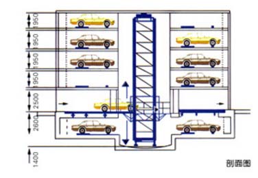
升降式立體停車:通過升降設備將車輛從地面上升到高空停車位,或從高空停車位下降到地面,實現車輛的存取。
平面移動式立體停車:通過搬運器將車輛從停車位移動到存車架上,實現車輛的存放和取用。
巷道堆垛式立體停車:通過搬運器將車輛存放在巷道內的停車位上,實現車輛的存放和取用。
圓盤旋轉式立體停車:通過圓盤旋轉的方式將車輛從停車位移動到存車架上,實現車輛的存放和取用。
垂直升降式立體停車:通過垂直升降設備將車輛從地面上升到高空停車位,或從高空停車位下降到地面,實現車輛的存取。
立體停車可以有效地解決城市停車難的問題,提高停車場地的使用效率,同時還可以降低停車場的建設成本,減少土地占用。但是,立體停車需要專業的設備和設計,投資成本較高,同時還需要考慮到安全性和便捷性等因素。
掃描進入手機站